
Check out some of our recent successes
At Crown Commercial Ltd., we pride ourselves on our unwavering commitment to delivering exceptional results for our clients. We are your trusted partner in leasing and business sales, dedicated to delivering results that make a difference.
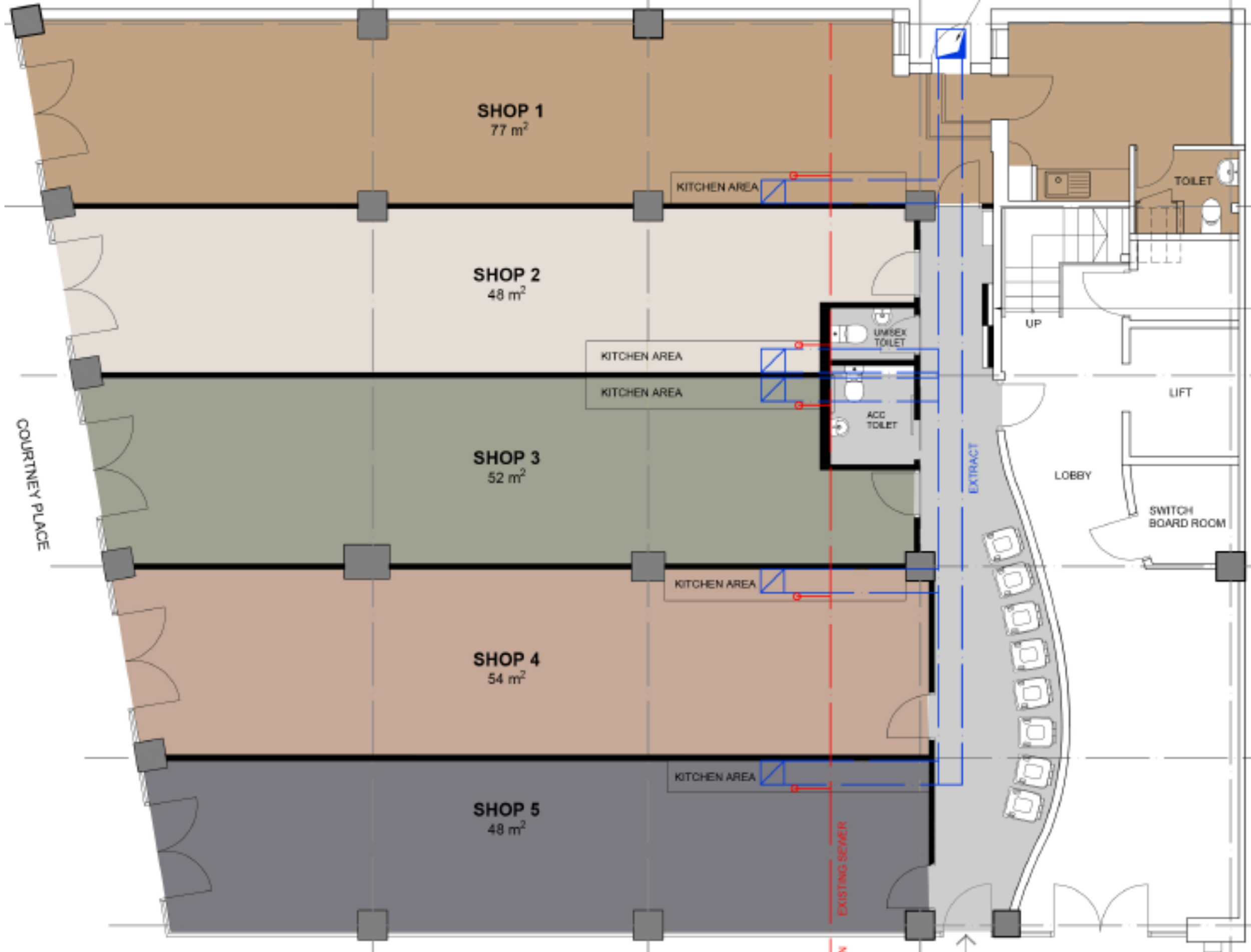
38-44 Courtenay Place
224 Cuba Street
76 Willis Street
38–44
Courtenay Place
We take pride in our successful lease of 38-44 Courtenay Place on behalf of the landlord, a property that was previously on the market for over a year with another agency. Through strategic insight and innovative thinking we were able to reconfigure the tenancy into five units, each uniquely designed to cater to the specific needs of potential occupants. The exceptional lease terms secured for an extended period reflect our commitment to delivering value for our clients. We are delighted to have not only found a creative solution for a previously challenging property but also to have revitalized this prime location, ensuring its long-term success in the heart of Courtenay Place.
224
Cuba Street
Crown Commercial's successful leasing of 224 Cuba Street to Woolworths Group franchised brand on behalf of the landlord is a testament to our expertise in real estate transactions. The lease agreement is robust, underlining the confidence between the landlord and the tenant in this venture. The site's transformation into a grocery store further adds to the vibrancy of Cuba Street, offering a convenient and quality shopping experience for the local community. Our role in conveying the transaction strengthens the landlord's property investment while also enriching the neighborhood by introducing a trusted name in retail.
76
Willis Street
Facilitating the lease of 76 Willis Street to the popular bar Malthouse represents a remarkable achievement. We successfully brokered a long-term lease with favorable terms and an exciting fitout for the premises. This partnership between the landlord and Malthouse promises to be a win-win with the iconic bar set to thrive in this prime location through Crown Commercial's expertise in real estate and leasing. This collaboration not only benefits the landlord but also enriches the vibrant social fabric of Wellington by moving Malthouse into the central city.